AMPLI PIS AL CENTRE DE PALAFRUGELL AMB VISTES A PLAÇA NOVA
L’habitatge destaca pels seus espais amplis i diàfans, amb una distribució molt funcional.
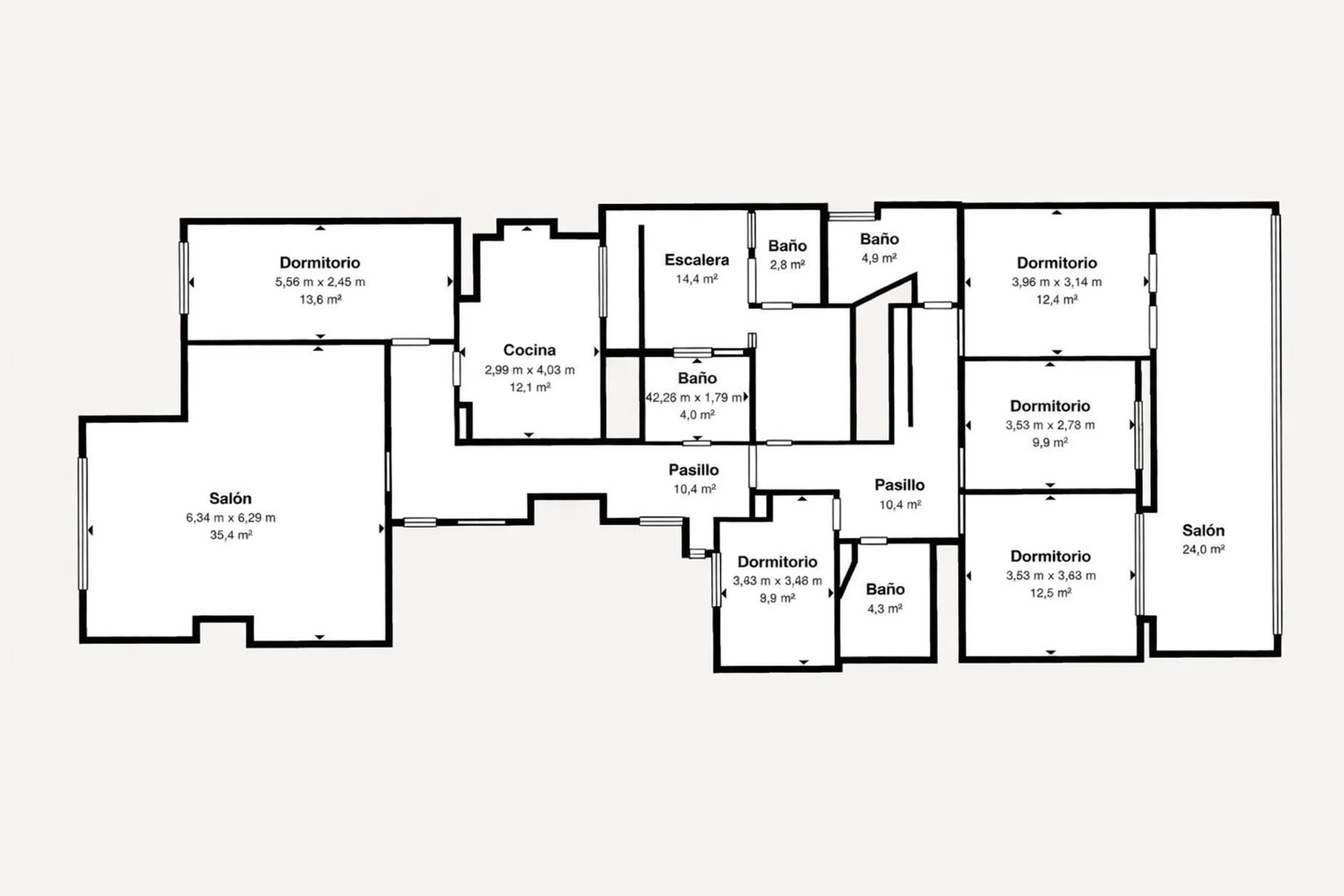
Disposa de 5 habitacions, una d’elles suite amb bany privat, oferint comoditat i versatilitat tant per a famílies grans com per a qui necessita espais de treball o despatx. El saló-menjador, ampli i lluminós, compta amb llar de foc i aire condicionat, i té sortida a un balcó amb vistes obertes a Plaça Nova, un autèntic privilegi al centre del poble. La cuina independent, amb despensa, ofereix moltes possibilitats de millora, tot i que està plenament operativa i permet entrar-hi a viure des del primer dia. Tres de les habitacions tenen accés a una galeria tancada, que aporta llum natural i funcionalitat.
A més, l’habitatge disposa d’un vestidor amb accés directe al rentador, un detall pràctic i molt poc habitual. El pis compta amb ascensor, radiadors a totes les estances, finestres de fusta, i inclou un traster al soterrani. Es troba buit, sense mobiliari, amb terres, finestres i banys en estat original però ben conservats, amb totes les instal·lacions en funcionament, fet que permet viure-hi còmodament sense necessitat de reformes immediates, deixant oberta la possibilitat d’actualitzar-lo progressivament al teu gust.
Una propietat amb gran potencial, espai i una ubicació privilegiada, ideal tant com a residència habitual com per a qui busca un pis ampli al centre de Palafrugell amb possibilitats de personalització. Contacta amb nosaltres i vine a descobrir totes les possibilitats d’aquest pis únic.
La informació continguda en aquest anunci és merament informativa i no té caràcter contractual. GISCOM Real Estate no garanteix l’exactitud de les dades, que poden estar subjectes a canvis, errors o omissions sense avís previ.
Estat de l’immoble: Per reformar
Superfície útil: 165 m²
Superfície construïda: 224 m²
Any de construcció: 1978
Certificat d’Eficiència Energètica (CEE): En tramit
Cèdula d’habitabilitat: En tràmit
Número API: 980
Número registre AICAT: 5339
No inclosos en el preu: ITP (tipus vigent a Catalunya), despeses notarials i registrals segons aranzel.
Honoraris: Els honoraris de gestió immobiliària estan inclosos en el preu de venda.












































